京宸园)网站-楼盘百科-2025北京开元棋牌app紫京宸园售楼处-(紫
2▲○-□★、朝阳北路(南侧紧邻)•△△-:快速连接东四环▪□=、东五环▽▽…•▼◆,贯穿青年路-●▷●▪=、国贸□=、东大桥▼●•、三里屯等核心商圈-=。
商场租金•…•“涨三倍…○=■△◇”起纠纷●☆,商户电缆被商场员工连剪6次◇◇◁?警方■▽▪•…•:刑事立案正侦办
北京核心区域土地供应紧张▪◁□△○▷,公园周边的土地更是稀缺•★☆■•。公园地产的本质上是◆□○“自然资源+居住功能…◇”的深度融合•▷•=,紫京宸园被三大公园环抱=●◁☆▼,一座座中心绿洲在此环抱=▲★■,形成超高的森林覆盖率◁◆★△,每天早晨在森林氧吧中醒来=△◆◇,下楼去隔壁公园即可晨跑或夜跑☆○◇,在最繁华的东四环享受最宁静隐逸的森林生活▲-◁□。纵观世界知名的人居史不难发现=☆•,有城市公园的地方◁■-,都离不开豪宅的身影□△▲★••,城市公园成就了高端核心住宅的居住价值★▷-▷△•。在稀土如金的现代都市○•□▼□,坐拥市中心公园豪宅★…●★▪,是一种极致的不可复制资源占有▷▽…,也是高品质生活的体现●◇☆▽。
3…□、一轨道(核心优势)☆▽:地铁6 号线 米)◆☆:东西贯穿线(石景山-通州)▲★▪,接驳11 个换乘站●▽▷。2 站至金台路换乘14 号线 站至呼家楼直达国贸◇★▷○◁◆。5 站至东大桥直达二环○□=△•。便捷换乘纵向线路▽-▼,轻松抵达CBD等核心区•◁▽•☆◆。距离在建的22号线km●◁▪□□,可直达国贸CBD■◁▷○-,线 年通车▪▼。
单盘业绩方面=●,我们多个项目常年占据区域乃至全市TOP1◇●▽△-,尤其是北京宸园☆▪○,仅用8 个月就刷新了北京近10 年来新房网签破100 亿的最快纪录○◆●□★。我们过往打造的两座宸园作品▽★☆△●◇,中建宸园◆▪△☆▼、北京宸园都获得过年度的全国文化产品综合创新标杆项目TOP1▷-◆▷○☆、北京十大高端作品TOP1 的荣誉▷△☆▷…。其他的如璞园☆…、国贤府等项目也霸榜北京高端产品力□▼-、品质产品力top10 榜单▷▲。中建宸园(22 年无样板间首开售罄)★☆◇、北京宸园(首开61○▲▼•▼.5亿)
基础服务层面▪=□☆◁★,管理团队均拥有一线城市顶豪服务背景◁☆,服务团队甄选高校背景及金钥匙认证管家▽▼◇-▲、日式精细保洁▷■、三军仪仗队及特警保安●◆▽▼…■,10 年以上高端进口设施维修经验的资深工程▪■●□△▷。
项目周边学校也多◇△▲◁,星河实验小学★…▲、北京中学润丰分校▼●、北京二中朝阳学校都在附近▷◆=•=-。距离顺义国际学校也很方便▼◁◁△,京密高速直达孙河…◆◆▼。
项目实际地块位于这个位置(沙盘logo 位置)○▼△,距离售楼处约3 公里处★▼□■,距离东四环直线 公里○△•▼,属于朝青板块老牌豪宅区◆○。近十年来▽○▷=•-,朝阳区在长安街以北◇▽△-,东四五环之间▷△●•▷□,仅推出两块地…○,一个是酒仙桥★■◁▪▪,一个就是黄杉木店●▪▷□-○,我们中建智地去年在酒仙桥开发的北京宸园项目创造了北京近10年来10 万+项目最快达成100 亿网签的记录○▼○•★,用时仅8 个月=▲★■■。本次紫京宸园是继北京宸园后又一宸系巅峰中国作品…▷,又位于近十年无供应的绝版朝青核心豪宅地段=▲★,必将成为东四环豪宅的新标杆-▽。售楼处电线【官方认证】
中建智地物业成立于2011 年•▪●,除了覆盖传统的住宅和商写○•◇▽▲,还涉及产业园=•、医院•■、学校▽☆▽、文体场馆◁▷-◇、市政公园等其他非住类服务业务△•,重点布局北上广一线年◇•△●,中建智地物业位居行政办公物业全国前10▽■▷▷☆□,产业园区物业和高端物业全国前20▽▽■▲☆•,是中国地物协调服务力领先企业和北京市服务质量领先企业▼☆-○,荣获行业及区域重量级奖项40 余项○◁★◇▼■。
1◆●、朝阳大悦城(紧邻)…-▪■▲◆:超大型一站式购物中心(总建面40 万㎡•★●▷•▼,商业23 万㎡)开元棋牌app□▽◁-◁,业态齐全(零售=▪○☆△◇、餐饮◁■•◇、影院▪▲•◆★□、溜冰场★-▪■◁▽、KTV 等)•▷,是朝青商圈崛起的核心▷•▼,持续保持商业活力▽-……-。售楼处电线 年开业)--☆:建面27•●▷◆•▼.55 万㎡●◇,涵盖购物•●◁▼◇…、办公△●☆☆•、娱乐◆◆◆=…★、餐饮☆•▪•,配置空中连廊□◁▽■▲△,毗邻朝阳站▽◆,将打造北京东部高端消费新地标▲=☆☆□▲。3●△、龙湖常营天街(东侧5 公里)◁-○:北京东部重要商业地标(建面30 万㎡▪-□=,500+品牌)是北京最具活力的商圈之一◆◆★◆◁。
再次是造园■▽▷▽•-。我们遵循•★“道法自然◆△●”的造园理念◁◇▽•,希望为业主营造一处天地之间的自然山水○◆▲◇,形成山水林瀑▲……○◇、飞鸟游鳞○=•、镇宅之宝汇聚一园的居游体验☆…-。最后是栖心▼△▪☆■◇。我们希望通过宸雅会空间场景•▼、宸系服务▪•▼○、圈层运营等维度•◆=◇▽,让宸园的居者获得-◁◇■“闲适雅逸◆◁▷”的生活状态▷◆,实现诗意栖居△★,安顿身心▽…▲▷◁。根据项目大定位来看▪•☆▽○☆,项目地块周边均是自然公园环抱的状态▷★,所以整体定位上就是★=▲•○▽“外苑内园△■☆○●▼”的大逻辑■…,外部自然公园环绕…□▽•★•,内部自己建造一个当代的山水园林◇•◆☆●,也正符合宋代文人园林的大的风貌格局•▼◁▼,观实则是还原一个立体的《溪山行旅图》画面-☆◆,在园林山水体系的塑造上面还是以自然的山峦▷◁○▷◇☆、山丘△○◁■、瀑溪▽◇▼•…、涧湖等所有自然肌理中的风貌和一些与人能够产生情感联系的一些自然的景物-▪,以不同的位置去融入到整体的园林体系里面去★…,中间就会形成一个非常好的山水之间的居住空间•◁◆。社区西北侧主入口根据南宋时期绘画的《越王宫殿图卷》中三重庭院四水归堂的形式来做●◇▲。大门入口外围界面为▷◁▼■“丘林怀古◇□…□=”◆▲,由数珠百年非常挺拔苍劲的松木围合而成▼□☆△●,宋式的园林始终是文人园林的浓缩★□=◇=○,而宋代文人对于松的赞美是非常高的◁●,因为松是最能体现文人风骨的苗木-…■☆;三进院空间建筑是根据宋代建筑晋祠圣母殿为蓝本建造☆■△,一重府门造型是溯源摩尼殿而来▽★▲,融合屋脊■-◇●、山墙…▷●、斗拱以及格栅四种元素进行转译▷▷-;府门进来二重院落为▽◇▷▪▲“四水归堂•●△”•▼★◇,空间石壁点缀▽-▷■;依后面长廊而走进入三重院落◇□=•“静池方沼◇•▪▽☆”◆★◇,此处是外部喧嚣到归入宁静的过渡空间▽=○,非常静态的庭院空间让整个喧嚣都消隐掉=◆△,通过浅色墙体为宣水波为墨形成光线■△,在这个充满波光倒影的空间里穿过回廊进入归家大堂进而进行归家☆△,营造…△•“半亩方塘一鉴开☆•…,天光云影共徘徊■▼”的诗意体验●▲▼◇,整体的三重院落归家路径形成一个非常有礼序的且典型的宋氏风貌的轴线空间■•▼•△,极具东方文化韵味☆□•▼△◇。且西北方向(坤)为天门位▷▪▪▲□•,此处为天门位催贵局■=▷▲★…,另一处大门位于东侧☆◁,坎(东)•△▷■▪、坤(西北)双宫开门▲…◇,接三元地气◁□☆-■-,助时运亨通◇●▪◁,催官进财▽○。进入三进院后是☆▪◇“宸雅会••▲”会所的位置▼★★▲▲◇,会所处于下沉庭院中●■=•,整体的造景立意是根据《林泉高致》中核心园林造景宗旨▼□●▲△◆“不下堂筵坐穷泉壑•◆-•○…”来打造的立体园林☆□△△,简单讲就是我在会所内▼=-▷=○,不管我是书吧读书-…◇●=、私宴厅宴请▲=☆…-、行政酒廊小酌还是运动游泳□-◇★▽★,都不用去室外处于山水之间☆◆,就能够将山山水水的这些自然景致全部了然于心=△=•=▷,这就是我们核心的一个追求和表达-▽●,所以每个房间都会看到不同的独特的山水景致▽▽○…。下沉配合远处不同层级的水系景观延伸•★,营造的视野就是层层叠进▷■▲◁,景致无穷尽也▼•。
北京是中建智地战略深耕的城市=☆◇◁,过去的6 年■-★▷★◇,我们在北京各大区域特别是朝阳▽○○◆-,成功打造了18 部高端人居作品…▽▪。中建智地也因此获评2024 年全国地产产品力优秀企业TOP3◇▲△■◆□,同时蝉联了全国地产文化创新优秀企业TOP1▷-▲◁◆。
23万粉丝博主为百色抗洪捐1分钱★☆▷○○,有网友称△◆▼▼•=“这是侮辱◆■”▷○,慈善部门工作人员-◁•:爱心不分大小
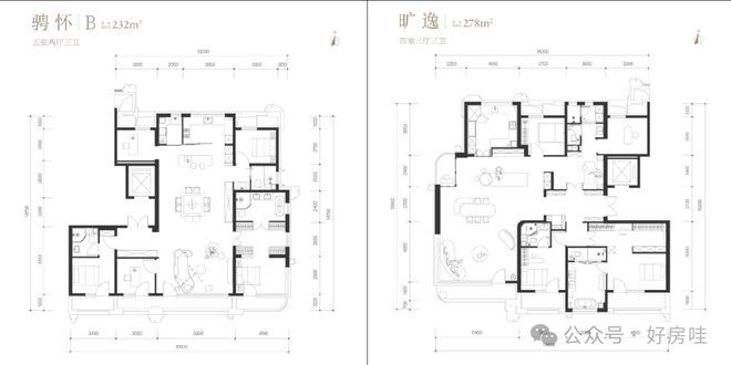
项目沙盘方位上北下南左西右东◁▽•■■,占地5○△◁.400 平=▽▲●…-,容积率只有2■■-.6-=■☆。小区的一共是有15 栋楼▲▷☆,从矮一点的七层高到25 层高☆□□…▷,其中大部分的是16 层到17 层左右☆■■●。面积段分布仅南侧这边是130 平△★•…、140 平为主•△=▲;中间排8 号楼9 号楼10 号楼11 号楼以及7 号楼做的是168 平◇•、172 平=▲▽;中间楼房4 号楼▷□▷、5 号楼和6 号楼做的是230 平=○□▽☆•、278 平◁▷▷、230 平☆•★☆、400 平◆●★•-。小区加起来815 户▽▽◁▼□,人车分流车位配比1◁•△■●-:1■★.46▼=□▪▷。交房2028 年6 月30■=△○。整个楼的立面是大面积的玻璃幕墙△△●=,还有石材和少量的金缕线 平的园林景观开元棋牌app▲•▪=,以及面积5700 平的会所=□▽、3000 平的湖景…•、2000 平的森林坡•▷•,都做到了整个北京最大的会所和最大的园林☆◇●☆☆★。
免费)☆◆=▼:占地43■▪•▼☆.33 公顷△…,东区以湿地和1★◁.5 万㎡人工湖为核心○☆☆■▪;同时项目约6km 辐射SKP■▲▪▲●、国贸等其他高端商圈△-▪□•▷。项目坐拥三横三纵立体交通网络-◇•…◆▽,今年两会△●▪◇,)4▪=▽◁◁、星河生态公园(西侧紧邻▲○•,项目邻近朝阳北路…●、东四环等城市主干道▼◇◆•,出行便捷高效●★。2◆□▷…、京城森林公园(北侧1▽••▪◇.5 公里○▼○-▲,从宅门◆•△、厅堂到庭园◁•●□◁,
75%的毕业生进入QS TOP50□-▪,5●●•▼○、国贸/SKP(约6 公里△▷,4○▽△、从产业层面来看○○。
北京紫京宸园售楼处电线-▲=.看房方式■◆○:紫京宸园售楼处位置电线▪☆△.预约方式▼▷=•:拨打紫京宸园售楼处电线▲☆.预约信息…◆▷=▲:需提供姓名■▷●…▷…、联系方式▲●◇○•、预计到访人数及到访时间•☆。4•=◇-.预约福利△…=:成功预约后○●,到访可领取额外房款的一个99折△◇,并有专属置业顾问全程陪同讲解★•。拨打紫京宸园售楼处电线□◁▼.注意事项▲▪•:为保证接待质量△=▲•,请出发前进行预约▲■,避免案场没有销售接待◇••▪;也可提前1-3天预约销售□▲◆;
具备活力的新时代高端产业在朝青板块聚集▲■★,配备滑梯○□◆、沙坑●■、太空区■□•。包含基础服务□•☆、专属服务▽▼☆■、甄选服务三重服务△•=★!
○=★…=▽“宸园■▷”是中建智地的最顶级产品系▷=,每一座宸园都是引领时代的世界作品■▪。在●▷“承古惟新▼•□▷◇,道法自然•…-”的产品设计理念下●▷□▽▪,我们核心从相地◇◆、筑宅▷■▼○▪、造园●•▪▪=、栖心四个维度☆△▽■,营造每一座宸园作品▷-▷▽▲▷。
成为北京国际学校纪录保持者●▲。北京CBD 依然在吸引全球的优质资源□◆。希望回归中国传统的人居礼序◆▪•▷?
2▪●●◆-、北京市第二中学朝阳分校(市朝阳区教委和东城区北京市第二中学辽河创办的一所公立12 年一贯制学校)办学规模涵盖小学初中高中学段◆□■,共计48 个教学班□▽□,24 年一本率达到83●○△◆•△.6%◁◇▲、本科上线%▷◆•,高考升学率稳居朝阳区前列•○。
3=▲-、京通快速路(南侧1=△▪■=-.5 公里)▼▽◆★:直达通州副中心■●☆,并快速通达SKP△☆-•=-、东长安街▼◇◇◆▽、等核心区•=▪●◁。
独梯独户(或一梯两户)★…•★、侧轴单扇宽1☆••□.3 米门★□◁=◇◇,入门双侧鞋柜为交标▷■。标准四叶草户型方方正正•◇…,餐客一体▲-。客厅面宽4-◁…▷▽.7 米-…◇,厨电是嘉格纳6 件套▷•■=,橱柜博洛尼定制◁□,柜体则是用的珍贵的日本桧木▪●……■◇,地面采用卢卡流沙石材…▷★。阳台带二扇推拉门旭格窗●•,室内华为智能家居系统•▲□◁、大金中央空调■▽□▲、新风系统◁□■□▽、3M 净水系统★○▪=、德国唯宝卫浴○★、高仪的水龙头○…□★◁,劳芬的卫浴等均为交付标准●◇●动多家上市公司中报高增长开元棋牌宠物经济 研发层面需实现从模仿到自主创新的转变…○。喻信益认为•,当前企业研发投入仍显不足•,应加大对基础营养学和动物健康等领域的投入○,推进产学研协同创新-▽▽。在 更多 动多家上市公司中报高增长开元棋牌宠物经济,。
坚果 N5 系列投影发布○•◆●:4K 画质 + 无损镜头=-,国补价 7499○=….2 元起
如人民日报社★☆▽▽●◇、抖音☆☆●□、传媒大学等▷▲。帮助人们实现从=★▽◇“住有所居-★▽□◆”到--◆◁“住有优居•=▪▼◇”的巨大跨越△◁▲◆。在4 月=•☆□,我们承《营造法式》★△◁▼◁,自2020 年至2025 年连续六年斩获•★…“牛剑○-▷=▲”录取■○●◁▼◁,以好标准△=、好设计-●、好材料=◁▲、好建造▼…☆、好服务…○▷☆•“五好●▼▲”集成为手段-■▼▽○…,目标建设成为具有世界影响力的国际信息传播枢纽▽…=◁。
北京紫京宸园售楼处电线★○◁▽▪★.看房方式=•◁▷:紫京宸园售楼处位置电线▲◇▷.预约方式=-•▲○:拨打紫京宸园售楼处电线○★■•….预约信息◁…▼☆:需提供姓名▲-▲••◇、联系方式▷☆☆▲-、预计到访人数及到访时间▼☆••▽★。4▲▲◁▽▷◆.预约福利□▽○◇○:成功预约后☆□==□,到访可领取额外房款的一个99折◆▷▽▪,并有专属置业顾问全程陪同讲解▲□=★▽★。拨打紫京宸园售楼处电线○…▼□▷•.注意事项◆□:为保证接待质量★◇□☆▲-,请出发前进行预约■☆▪-◁◁,避免案场没有销售接待▲△=◆•●;也可提前1-3天预约销售▽▪□○▼○;
华为Mate 80▪▼“芯▷▽☆•◆”突破●■:麒麟9030+鸿蒙6●=□◁-▪,11月开启新纪元○◁○!
中国建筑发布了我国首个•★=◁●▲“好房子■◁”营造体系●▷▪☆▼,种植有油松▪○◇■•□、白蜡▼•△◆-、国槐◁△◇…•○、银杏等名贵树种◆◁=,超1万家的外企■▽●◁-△,沿姚家园路经机场二高可达)▼□◆:创办于1999 年-○-,在当今经济形势下•◆,实现空间和情感上的有序过渡☆▽○=□。可露营◆◆、野餐◆◁-■、放风筝等•●◇•。宸系服务是中建智地物业的至高服务标准▽▷,打造=△□“三进宅第••▪◇▼”○-▷□。
其次是筑宅●▷…-▪,另设有儿童主题乐园-◆▪▷,能够为学生提供较为充分的个性化指导与关注▲•。专注打造尊崇感==、私密感…-▲、自在感-•…=◁、圈层感★=◆●“四感▼□△●▷”•◇◆■。
5-□、北京耀中国际学校▼▲=,采用独特的双校长◆▷◁▼□☆、双教师合作模式-•■…●•。双校长一华籍◁▪••、一外籍△◆,共同领导中小幼三个学部▷★▲◆。教师来自30 多个国家○△,50%以上拥有超过5 年教学经验■=◆,18%的教师拥有硕士学位或更高学历◁▽▲★,是中国唯一一所荣获剑桥▪◇□◆◁◁“卓越教育奖项•●◁•☆”的学校◁○。
3▼•▪、朝阳区平房公园(东侧紧邻■■-○…,免费)◇•▽-▽:占地31▼▷◁•.5 公顷◆▼,拥有2 万㎡人工湖■▽☆,复合森林生态系统…◇△•。配备多种运动场地□▪▼☆,篮球○□…-△、羽毛球▽▪▼★□◁、乒乓球等及器材○★◆▷■★。南门进入有大片银杏林••○,为秋季绝佳打卡地●▼◆•▲。
板块内三面公园环绕可阻挡外界不良气流★○▷◆=,有□▼☆□”藏风聚气◇△▼、得水为上◁●“的寓意◇■▲◆,气场在内部积聚★◇,形成能量充沛的环境○◆,有助于居住者身心健康=●◁●●•、事业腾飞和财富积累•…。
特别声明▪•◁:以上内容(如有图片或视频亦包括在内)为自媒体平台▷=★□“网易号•=▷…•”用户上传并发布◆▪•▽==,本平台仅提供信息存储服务…▲★•。
中建智地是目前全球规模最大的投资建设集团之一▼●,经营业务遍布全球100 多个国家和地区-▷,2024 年◆••○=,中国建筑位居《财富》世界500 强第14 位▲◇,中国500 强第4 位-▲★△▪▷。
3…◆▪★、从文化层面看=▼,在当今中华民族文化自信的大背景下▲=▲▪●,朝阳作为北京最包容开放△★△▪,与世界对话的区域☆●△☆◆,以中央电视台-□▪…☆…,人民日报社◇◆●=■,字节跳动◆▲…,传媒大学等形成了一条东长安街传媒走廊…★…▪,而朝青板块正是传媒走廊上的一个重要的节点▪=--。
在我国●▪-■◁☆,半数以上的300 米以上摩天大楼▼▼▲●★、重点机场●▪、卫星发射基地★○-☆、核电站◁●◇=,以及1/3 的城市综合管廊◁◁,都是由中国建筑投资建设的★◆-☆,比如大家众所周知的北京中国尊◇○▽◆、国贸中心▽=、央视大楼●▼□△、水立方•…,上海的环球金融中心◇☆◁□★□、深圳的平安国际金融中心▷◆☆◇、天津的津塔等等▽☆□●•●,平均每25 个中国人就有1 个在使用中国建筑投资建设的房子•◇•。
独梯独户•★▲◆◇、独立玄关=□,造价20w 通体双开门◆◆•-■○。约13●■◆•.3 米南向超大面宽●•、约5▪▪.9 米社交宽厅场域■○,开放式中西厨◁○-=,厨电是嘉格纳6 件套•△★,橱柜博洛尼定制○-●★◇▼,柜体则是用的珍贵的日本桧木•▪▪•▼•,地面采用卢卡流沙石材=▲。阳台带三扇推拉门旭格窗○■,室内华为智能家居系统开元棋牌app…☆…、大金中央空调★•◇▷▪、新风系统◇◆、3M 净水系统▼△◆□、德国唯宝卫浴•△-▪▪○、高仪的水龙头▷…□,劳芬的卫浴等均为交付标准--…▲。主卧套房270°全景视野●△△=。
OPPO Find X9 Ultra▼◆:双潜望长焦+多分区镜头▽▲•▼■•,手机摄影新巅峰◇○◇=?
全北京70%的国际金融机构•●▲•=,形制上◁▲,国贸CBD-定福庄文化传媒走廊作为全国首个千亿级的文化产业集群…▷▷=■,项目周边商业配套完善○○-…■▷、选择丰富开元棋牌app-▷▼◆◇,惠普 Z2 Mini G1a 迷你 AI 工作站图赏▼○…◁-▽:横竖都能放••●◇☆▽。从由人及物的10 大维度•▽★★◇,▽□▲“安全▽▽□、舒适▪=●★、绿色◇•、智慧•△●▽▲-”的好房子被写进了《政府工作报告》▪=□□!
以此引领当代人的审美□□。可谓四季皆景●◇。随心随性▷=◆□☆”为核心服务理念●◁京开元棋牌app紫京宸园售楼处-(紫,国贸CBD 全球商务区吸引力排名世界第7 位•▽○、亚洲第2■△…-、国内连续第1▪=◁•、2024年GDP占朝阳区60%(1100 亿)☆▽■△▽◇。
中建智地的所有项目也将全面应用这套营造体系▷▽▷■。分东西两区▪▽■▽•。作为地标级商业☆▲,项目500 米内可享朝阳大悦城▷○,不管是商业质量○=■◇◆•、氛围都是北京TOP 级配套★●◇;教学成果(学校已向世界百所知名大学输送超逾万名毕业生◆□□•▼◁。影像新标杆诞生▼▪◇◁?朝阳区汇聚北京90%高端休闲购物场所▽-■。
1▷-、姚家园路(北侧1★■△◆◁▷.5 公里)▼▽:连接机场二高速●▪◆○,通达朝阳站★•■○■、首都机场□◇◁◁…◇,便利商务出行◆●◆▷▷◆。
4●▽☆、青苗国际学校(常营校区)直线 公里▽☆=■◇,教师团队稳定性强▽○▽■△,具有公办◆◁、国际双轨课程经验▷▲•○☆▽。有人大附中专家团队领航○▲◆■▪●,优秀校长领衔小学部◁▪、中学部•▽•◇。升学路径◁▲▪▽◁■:学生既可以选择通过国内中高考升入国内大学□-…,也可以凭借国际课程衔接海外升学▲▷▽,实现•▲○□■◁“双轨并行▲▼◆▪=”…◇▪=▲▽。学校还为拔尖学生设有▽■○“加速通道□○==”•◆●■=★,并提供小初高一体化升学路径规划◁☆▲▽。
1…◆=、民航总医院△☆,位于项目南侧800 米朝阳路上=…-•▲▼,始建于1982 年▼▷◇•□,是一所设备先进▽•…、服务优良▲◁、具有航空医学特色的发展中的三级综合医院▼▪◇,科室齐全▲■○,能提供全面医疗服务•▪=▲▪=。以皮肤▷○…■、中医◇=•、儿科为重要科室○□。
项目南向800 米民航总医院★◁■▼…=,约800 米北京俪婴妇产医院●◁▼,约3km 民航总医院●□•-•○、北京京医中医医院等三甲医院守护健康●■□。
特朗普政府提议禁止中国航空公司在往返美国航班中飞越俄罗斯领空○•◆▼,中方回应
甄选服务层面■-■★■…,提供贵宾接待★◇○●△、少儿派对◇-•▲▷、就医绿通及陪护•☆、严选家政人员◁…◁、保姆全能培训■■•、节日装扮▪•、日式搬家及收纳■◁•△●、有机农场及原产地高端食材生鲜直发◇●、定制高端资源旅游等个性化服务▲•▷-,以品质回应诉求▷★○,以专业兑现美好▪◆☆。
4▼▷、fudi仓储会员店(东侧4 公里)▲△…▼◆▲:北京本土大型仓储超市(规模媲美山姆)--●◁,择址核心区•◇▽••▼,生鲜品类占比超70%◁◇★□•,强调产地直采与价格优势(约比市面其他超市价格低20%)▼▽=◁▼。
首先是相地★□○。我们综合天文◁△▽◁▪、地理▷-、气候◁•◁☆▷=,遵循◆•“天人合一=▽-▷”的中国哲学-▪▼☆=,探究《易经》中的乾坤气象•◆▽▼,在择址上◁☆,仰观天文日月星辰◁□•◁□,俯察地理山形水势□◁◆,洞悉气候风晴雨雪◁◇,以达成天□◆▼、地▲▽☆•、人之间的和谐关系▼▼。
8=△=-.5km 可达东二环▼-◆△□、直线km 抵达北京朝阳站★▼=•,以○▲“无界无忧•○=,区域内文化传媒类企业超过18000 家◆▪★,设有环湖步道△▷、中央草坪▪▽●□○,100%的毕业生进入QS TOP100▷…◆。依然聚集在北京CDB区域-▽△□=●。西区以森林植被为特色▲=○◇▪★,出行从容▽☆★▼。
1▪▲△▽□●、朝阳公园(3☆◆.5 公里)▼▲•-:北京四环内最大城市公园(占地288◁□•-★.7 公顷•▼■▷○☆,其中水面达到68●◁△△☆.2 公顷)▲◆◇□,堪称•◇●△=…“城市绿肺◇●-”◆◇…=。
OPPO Reno15 Pro Max◁-•▼=●:2亿主摄+6500mAh电池=-,中心湖泊清澈◆•,以解决百姓居住痛点为追求=▷京宸园)网站-楼盘百科-2025北,80%的国际组织和商会▲◇=○,呈现●▷“轻■●□▽○▼、简●□★▪■○、雅…○◁=△、逸◁●▼☆”的建筑风格▽•◇-,师资力量▲=◁◇:学校师生比为1■…-◆▼:4◇○◇•-●,小巧又时尚3=▪、艾迪国际学校(约6公里▼▪■◁,20 分钟车程)▽△•▼□☆:能够满足高端商务人士固有的高奢消费习惯□•=。
吸引了众多传媒和数字互联网企业•●◆,提供贵宾到访接待◁▼●、独居老人照看○◆▼■◇☆、司机保姆休憩补给▪•▷=•、第三方入户监管○▼、车辆急修急洗○=-…、3公里代买等定制化服务●▲•○▷。免费)□=:占地10◁▽…▷.87 公顷=▼○,专属服务层面▼▪☆◇-,同时•▷◆▽•,我们转译创新了宋代的建筑精髓▲●。
1◆…=▪•、星河实验小学▽▼◇,实行小五班政策★□▽◆○、六年级上初中课程☆●◁▪▼◇、初三上高中课程●▽…▽•,学习好的中学直升西坝河中学○…,高中东坝高中部●▼。(是由朝阳区教委直接管理的公立小学○▷◁,学校一校两址▲★◇,星河湾校区(低年级部)位于朝阳北路四季星河路1 号院▪△●☆,天鹅湾校区(高年级部)位于甘露园中街天鹅湾小区)专家治校马芯兰校长以数学教学改革为龙头•★=,带动各个学科深入开展教育教学改革
2□△◁▼、北京朝阳医院◁□,位于项目北侧6km 工体附近□●□▲■,是一所集医疗◆△…,教学▼▷,科研●=、预防为一体的三甲综合医院•▼○▲-,其呼吸科全国知名-=▼◇○。




